Gartenstraße - 26548 - Norderney

3 personer
7 overnatninger
Fra DKK 4.395,-
3 voksne 0 børn

Fakta om boligen

  • 3 personer
  • Ingen husdyr
  • Rygning ikke tilladt
  • 1 soveværelse
  • 1 badeværelse

Faciliteter

Afstand

  • Strandafstand
    650 m

Badeværelse

  • Hårtørrer

Grundlæggende

  • Børn velkomne
  • Ikke-ryger
  • Kvadratmeter
    38 m²
  • Værelser
    2

Hus

  • Baby seng
    1
  • Dobbeltsenge
    1
  • Enkeltsenge
    1
  • Garderobe
  • Internet
  • Lukket terrasse
  • Senge
    3
  • TV
  • WiFi

Køkken

  • Køkken
  • Mikroovn
  • Opvaskemaskine

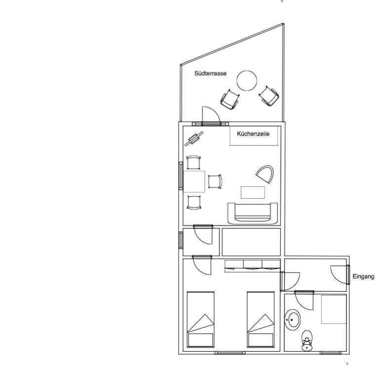
Beskrivelse

Beskrivelsen foreligger desværre ikke på Dansk. Se teksten på Tysk nedenfor, eller se den maskinoversatte tekst på Dansk.
Sonnenborstel 3

Die Ferienwohnung "Sonnenborstel 3" liegt im Erdgeschoss im Haus "Sonnenborstel". Das Haus befindet sich in der Gartenstraße. Auf ca. 38 Quadratmetern bietet die Wohnung Platz für bis zu drei Personen. Der Strand ist ca. 650m entfernt. Zum Kurplatz sind es nur ca. 200m. Zahlreiche Restaurants, Cafés und weitere Geschäfte sind in wenigen Gehminuten erreichbar. Die Wohnung verfügt über eine Küchenzeile, pragmatisch eingerichtet, einem Wohnzimmer mit einer Ausziehcouch und einem Schlafzimmer mit einem Doppelbett. Das Badezimmer ist mit einer Dusche und einem WC ausgestattet. Das Highlight der Wohnung ist die Südterrasse. Hunde sind in dieser Ferienwohnung nicht erlaubt. Die Feldhausenstraße auf Norderney wird saniert. Die Arbeiten werden ca. von November 2025 bis Mitte Mai 2026 andauern (im Vorfeld sind kleine vorbereitende Arbeiten möglich). Die Feldhausenstraße ist in dieser Zeit nicht mit dem Auto befahrbar.

Afstande fra ferieboligen og placering på kort

  • Strandafstand 650 m
Der tages forbehold for evt. fejlplacering. Husadressen fremgår af lejebeviset.

Vores gæstevurderinger Eksterne vurderinger

Ingen gæstevurderinger
4,4
14 eksterne vurderinger
4,8
november 2025
Generel:
Familie mit Kleinkind
4,7
juli 2025
Generel:
Familie mit Kind
4,0
marts 2025
Generel:
Paar
4,0
november 2024
Generel:
Alleinreisend
4,0
september 2024
Generel:
Ruhige Lage, trotzdem zentral
4,8
juni 2024
Generel:
Familie mit Kind
5,0
november 2023
Generel:
Gruppe
4,5
oktober 2023
Generel:
Alleinreisend
4,3
juli 2023
Generel:
Familie mit Kind
4,3
juni 2023
Generel:
Alleinreisend
4,5
maj 2023
Generel:
Paar
4,5
maj 2023
Generel:
0
4,3
april 2023
Generel:
Paar
4,0
december 2022
Generel:
Alleinreisend

Priser og kalender

Kalender

Ankomst
Næste
   Se om emnet er ledigt på den valgte dato
Ledig
Optaget
   Ankomst mulig
Varighed
Personer

Pris

Periode
Ankomst
Afrejse
Varighed
1 uge
Personer
Ingen personer er valgt

Bemærk

Ankomst er ikke valgt.
Der er ikke valgt personer.
Aftale- og lejebetingelser