Dorfstraße - 18347 - Ostseebad Ahrenshoop

4 personer
7 overnatninger
Fra DKK 9.027,-
4 voksne 0 børn

Fakta om boligen

  • 4 personer
  • 1 husdyr
  • Rygning ikke tilladt
  • 2 soveværelser
  • 2 badeværelser
  • Vand 50
  • Indkøb 250

Faciliteter

Afstand

  • Afstand indkøb
    250 m
  • LakeDistance
    300 km
  • Restaurant afstand
    20 m
  • Strandafstand
    50 m
  • Sø afstand
    50 m

Aktiviteter

  • Cykling
  • Jogging
  • Nordic walking
  • Ridning
  • Surfing
  • Svømning
  • Vandreture
  • Vandsport

Badeværelse

  • Badeværelse vindue
  • Bruseantal
    2
  • Bruser
  • Håndvask
  • Hårtørrer
  • WC

Grundlæggende

  • Byggeår
    1900
  • Børn velkomne
  • Ikke-ryger
  • Kvadratmeter
    70 m²
  • Værelser
    3
  • År Renovering
    2021

Hus

  • Allergi venlig
  • Familie
  • Flueskærm
  • Fuld længde spejl
  • Garderobe
  • Havudsigt
  • Internet
  • Kingsize senge
    2
  • Komfur
  • Lounge siddepladser
  • Lænestol
  • Makeup spejl
  • Mulighed for mørklægning af rummet
  • Radiator
  • Radio
  • Røgalarm
  • Senge
    4
  • Sofa
  • Spejl
  • Spisebord
  • Spisepladser
  • Stue
  • Støvsuger
  • Terrasse
  • TV
  • TV antal
    3
  • Varmt vand
  • Vasketøjsstativ
  • WiFi

Køkken

  • Elkedel
  • Fryser
  • Kaffemaskine
  • Køkken
  • Køkkenredskaber
  • Køleskab
  • Opvask
  • Opvaskemaskine
  • Toaster

Udendørs

  • Antal parkeringspladser
    2
  • Havemøbler
  • Privat P-plads

Beskrivelse

Beskrivelsen foreligger desværre ikke på Dansk. Se teksten på Tysk nedenfor, eller se den maskinoversatte tekst på Dansk.
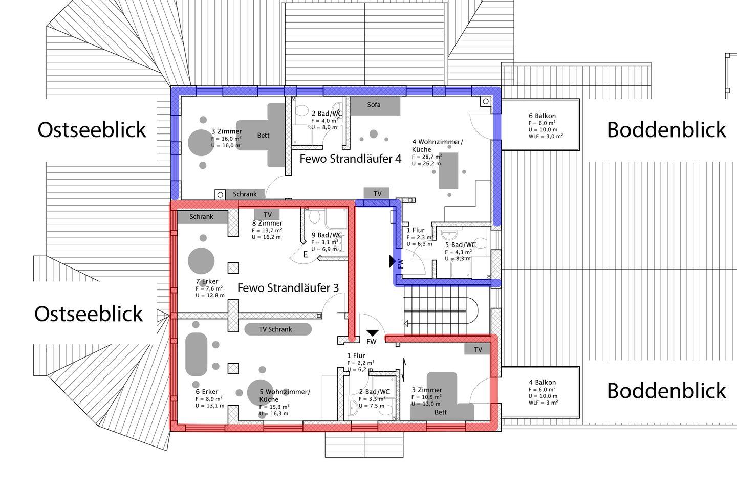
Ferienwohnung Strandläufer 3

? Ferienwohnung ? Ostseebad Ahrenshoop ? bis zu 4 Gäste ? 2 Schlafzimmer ? 2 Badezimmer ? Meerblick ? Balkon ? jetzt buchen!

Umgebung Die Strandläufer-Ferienwohnungen befinden sich in attraktiver Lage. Nur 50 Meter vom Meer entfernt, mitten im Ortskern und mit Blick auf den Bodden genießt du hier alles, was Ahrenshoop so einmalig macht. Restaurants, Cafés, kleine Lädchen, die Schifferkirche und Kunstgalerien befinden sich nur einen Katzensprung entfernt. Mit dem Rad oder zu Fuß kannst du entlang des Deichs und den Boddenwiesen den wildromantischen Weststrand und die umliegenden Dörfer erkunden. Zur Ferienwohnung Die Unterkunft „Strandläufer 3“ befindet sich im zweiten Obergeschoss des Haupthauses Strandläufer und ist über den Seiteneingang zu erreichen. Großzügige Räume, helle Farben und ein Mix aus modernem Mobiliar und Möbeln im Stil der Gründerzeit machen diese Ferienwohnung zu einem besonderen Urlaubsdomizil. Mittelpunkt der Wohnung ist der offen gestalte Wohnbereich mit vollausgestatteter Küchenzeile und Esstisch mit Ausblick auf die Ostsee. Ob mit Familie oder Freunden, hier gibt es genügend Platz zum gemeinsamen Kochen und Klönen. Ebenso großzügig wie der Wohnraum sind auch die beiden Schlafzimmer der Ferienwohnung. Ausgestattet mit je einem Doppelbett, Kleiderschrank, TV und Sitzgelegenheiten, findest du hier einen erholsamen Schlaf. Besonderes Highlight: Auch eins der Schlafzimmer zeigt in Richtung Ostsee. Hier genießt du einen einmaligen Blick auf das Meer mit seinen spektakulären Sonnenuntergängen. Das zweite Schlafzimmer verfügt über einen Balkon mit herrlichem Blick auf den Bodden. Für weiteren Wohnkomfort sorgen die beiden Badezimmer mit Dusche und WC. Im Außenbereich steht dir ein Balkon mit Tisch und Stühlen zur Verfügung. Der herrliche Ausblick wird dich begeistern. Denn hier kann dein Blick über die Reetdächer bis zum Bodden schweifen. Es ist der perfekte Platz, um einen der berühmten und lichtdurchtränkten Sonnenaufgänge zu beobachten, die so einmalig auf der Halbinsel sind. Zur Ferienwohnung gehören außerdem zwei PKW-Stellplätze. Besonderheit In den Häusern Muschel und Strandläufer gibt es noch 7 weitere Ferienwohnungen, die gern für Familien und Gruppen zusammen gebucht werden können. Des Weiteren befindet sich ein Restaurant im Haupthaus.

Afstande fra ferieboligen og placering på kort

  • Afstand indkøb 250 m
  • LakeDistance 300 km
  • Restaurant afstand 20 m
  • Strandafstand 50 m
  • Sø afstand 50 m
Der tages forbehold for evt. fejlplacering. Husadressen fremgår af lejebeviset.

Priser og kalender

Kalender

Ankomst
Forrige Næste
   Se om emnet er ledigt på den valgte dato
Ledig
Optaget
   Ankomst mulig
Varighed
Personer

Pris

Periode
Ankomst
Afrejse
Varighed
1 uge
Personer
Ingen personer er valgt

Bemærk

Ankomst er ikke valgt.
Der er ikke valgt personer.
Aftale- og lejebetingelser