7 overnatninger
Fra DKK 6.263,-

Fakta om boligen

  • 2 personer
  • Ingen husdyr
  • Rygning ikke tilladt
  • 1 soveværelse
  • 1 badeværelse
  • Vand 200
  • Indkøb 400

Faciliteter

Afstande

  • Over havniveau
    10 m
  • Til badepladsen/vandmassen
    200 m
  • Til bageren
    300 m
  • Til busstoppestedet
    500 m
  • Til centrum
    300 m
  • Til cykelstien
    200 m
  • Til lægen
    400 m
  • Til pengeautomaten/banken
    400 m
  • Til restauranten
    100 m
  • Til stranden
    200 m
  • Til supermarkedet
    400 m
  • Til turistinformationen
    300 m
  • Til vandrestien
    200 m

Aktivitetsfaciliteter

  • Cykelvenlig
  • Dyk

Grundlæggende faciliteter

  • Byggeår
    1920
  • Størrelse
    64 m²
  • År renoveret
    2018

Indkvartering Faciliteter

  • Allergivenlig
  • Cykelrum aflåselig
  • Cykelvenlig
  • El-cykel ladestation
  • Handicapvenlig
  • Ikke-ryger hus
  • Internet i det offentlige område
  • Sikkerheds boks
  • Vandrer venlig

Omgivende faciliteter

  • Cykelrum
  • Have til brug
  • Parkeringsplads
  • Siddeplads i haven

Servicefaciliteter

  • Allergikere (dyrefri)
  • Bad/toilet
  • Dobbeltseng
  • Dyr ikke tilladt
  • Eisen
  • Håndklæder
  • Hårtørrer
  • Ikke-rygere
  • Insektsmiddel/gaze
  • Internet - WiFi
  • Kabel/Sat
  • Køkken (åbent)
  • Køleskab
  • Mikroovn
  • Mulighed for fryser
  • Opvarmet
  • Opvaskemaskine
  • Ovn
  • Rengøringsmidler
  • Sengetøj
  • Sikkerheds boks
  • Smart-Tv
  • Sofa seng
  • Soveværelse
  • Strygebræt
  • Stueetage
  • Terrasse
  • TV
  • TV - fladskærm
  • Tørretumbler
  • Vaskemaskine

Beskrivelse

Beskrivelsen foreligger desværre ikke på Dansk. Se teksten på Tysk nedenfor, eller se den maskinoversatte tekst på Dansk.
VillaStrandEins FeWo Stella *****, Fewo Stella in der VillaStrandEIns

Wunderschöne Bädervilla aus der Gründerzeit. Das Objekt wurde bis Mai 2018 aufwendig kernsaniert. Eine Fußbodenheizung und Fliegenschutzgitter gehören zur Ausstattung.
Das Haus steht zentral in einer ruhigen Seitenstraße im Ortskern. Die Entfernung zum Strand beträgt nur 150 m.
Der gekennzeichnete Pkw-Parkplatz liegt auf dem Hof direkt hinter dem Haus vor dem Eingang der Wohnung und wird kostenfrei zur Verfügung gestellt.
Bettwäsche, Handtücher, Wlan und ein Safe sind ebenfalls im Übernachtungspreis enthalten. 

NICHTRAUCHERWOHNUNG
Die Wohnung ist für zwei Personen buchbar. Weitere Personen dürfen nicht in der Wohnung übernachten.

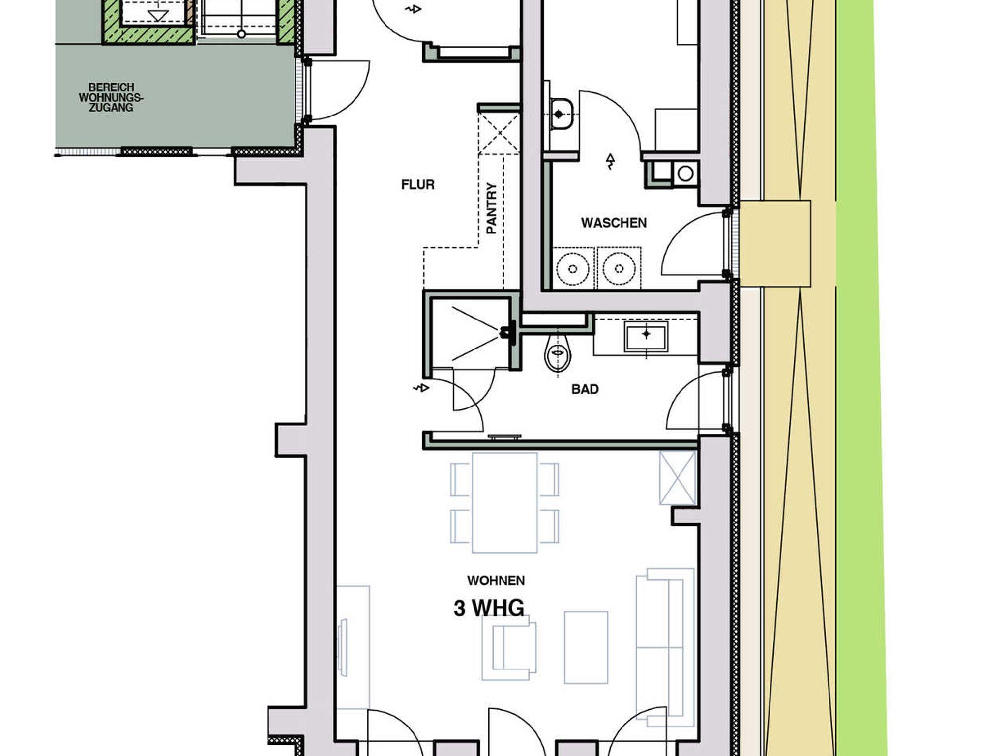
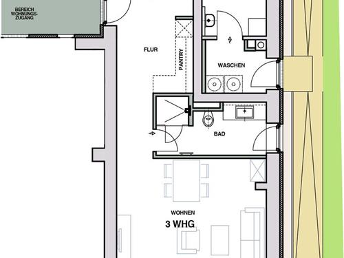
Bei der Ferienwohnung Stella handelt es sich um eine exklusive eingerichtete Ferienwohnung auf großzügigen 64 qm im Erdgeschoss der VillaStrandEIns. Zwei Terrassen und Rasenflächen stehen zur alleinigen Nutzung bereit. Vor dem geschmackvoll und bequem eingerichtetem Wohn-/Essbereich liegt die Terrasse und Rasenfläche im Süd/Ost Richtung. Das bequeme Schlafsofa (1,6x2m) ist für 2 Personen geeignet. Die großzügige offene Küche ist mit allem technischen Komfort (Kühl-/Gefrierschrank, Geschirrspüler, Backofen, Induktionskochfeld, Mikrowelle) ausgestattet. Auch Kaffeemaschine, Toaster, Wasserkocher, Handrührgerät und Stabmixer sind vorhanden. Das Schlafzimmer ist mit einem Doppelbett in Komforthöhe (1,8x2,0m), einem großen Kleiderschrank und ein TV-Gerät ausgestattet. Hier haben Sie den Zugang zu der zweiten Terrasse und Rasenfläche im Süd/West Richtung. Das luxuriöse Bad ist mit einer großen, bodengleichen Dusche, einen Waschtisch aus Granit, einen Unterbauschrank, Handtuchwärmer und Fön ausgestattet.Bettwäsche und Handtücher sind für 2 Personen im Mietpreis enthalten. Eine Waschmaschine und Wäschetrockner sind im Gemeinschaftsraum vorhanden. Bügeleisen und Bügelbrett stehen in der Wohnung bereit.

Vor Ort
Kurtaxe wird vor Ort bezahlt
Licens nr.: 1610188

Afstande fra ferieboligen og placering på kort

  • Over havniveau 10 m
  • Til badepladsen/vandmassen 200 m
  • Til bageren 300 m
  • Til busstoppestedet 500 m
  • Til centrum 300 m
  • Til cykelstien 200 m
  • Til lægen 400 m
  • Til pengeautomaten/banken 400 m
  • Til restauranten 100 m
  • Til stranden 200 m
  • Til supermarkedet 400 m
  • Til turistinformationen 300 m
  • Til vandrestien 200 m
Der tages forbehold for evt. fejlplacering. Husadressen fremgår af lejebeviset.

Vores gæstevurderinger Eksterne vurderinger

Ingen gæstevurderinger
5,0
Faciliteter:
5,0
Rengøring:
5,0
Komfort:
5,0
Venlighed:
5,0
Beliggenhed:
5,0
Generelt:
5,0
Værelse:
5,0
Service på stedet:
5,0
Værdi for pengene:
5,0
2 eksterne vurderinger
5,0
juni 2024
Faciliteter:
5
Rengøring:
5
Komfort:
5
Venlighed:
5
Beliggenhed:
5
Generelt:
5
Værelse:
5
Service på stedet:
5
Værdi for pengene:
5
5,0
maj 2023
Faciliteter:
5
Rengøring:
5
Komfort:
5
Venlighed:
5
Beliggenhed:
5
Generelt:
5
Værelse:
5
Service på stedet:
5
Værdi for pengene:
5

Priser og kalender

Kalender

Ankomst
Næste
   Se om emnet er ledigt på den valgte dato
Ledig
Optaget
   Ankomst mulig
Varighed

Pris

Periode
Ankomst
Afrejse
Varighed
1 uge
Personer
Op til 2 personer

Bemærk

Ankomst er ikke valgt.
Aftale- og lejebetingelser