Fakta om boligen
- 3 personer
- Ingen husdyr
- Rygning ikke tilladt
- 2 soveværelser
- 1 badeværelse
- Vand 400
Faciliteter
Afstand
-
Afstand til nærmeste strand400 m
-
Afstand til Schlei400 m
-
Afstand til Østersøen25 km
Bad
-
Bruser
Badeværelse
-
Bad / WC
-
Bad/toilet
-
Gæstetoilet
Beliggenhed
-
Schleichblick
-
Strandnah
Bæredygtighed
-
Cykeludlejning
Diverse
-
Cykellæ
-
Cykelrum
Generel
-
Allergi venlig
-
Husdyr/hund forbudt
Generelt udstyr
-
Ikke-rygere
-
Rolig beliggenhed
-
Vaskemaskine
-
WLAN
Grundlæggende
-
Gæstetoiletter1
-
Køkkener1
-
Stue1
-
Størrelse88 m²
Køkken
-
Fryser
-
Kaffemaskine
-
Køleskab
-
Mikroovn
-
Opvaskemaskine
-
Ovn
-
Vandvarmer
Køkkenudstyr
-
Tekøkken
Service
-
Cykler
-
Håndklæder inkluderet
Stue/soveplads
-
Dobbeltseng (180x200)
-
Enkeltseng 90x200
-
Pejs/brændovn
-
Sofa
-
Stort spisebord
-
TV
Teknologi og andet udstyr
-
DVD
Tjenester
-
Sengetøj inkluderet
Udendørs
-
Balkon / Loggia
-
Gratis parkering
Udendørs faciliteter
-
Parkeringsplads
Beskrivelse
Beskrivelsen foreligger desværre ikke på Dansk. Se teksten på Tysk nedenfor, eller se den maskinoversatte tekst på Dansk.
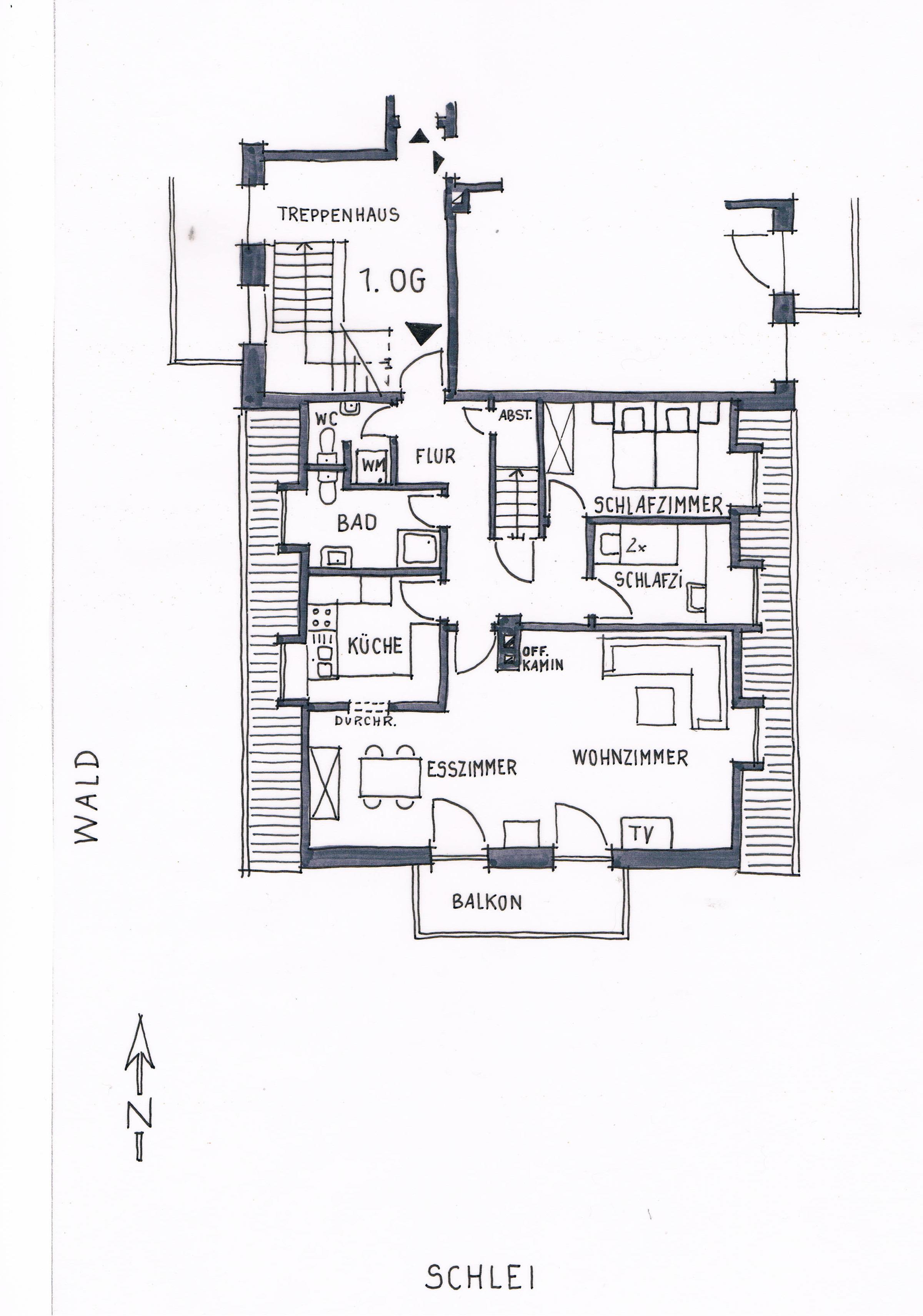
Ferienwohnung/App. für 3 Gäste mit 88m² in Schaalby (184013) (1. Stock)
Erholung auf Gut Winning mit Schleiblick – Charmante Ferienwohnung (88 m²) im Herrenhaus mit Balkon, großer Küche & Naturstrand in der Nähe. Ideal für Naturliebhaber & Ruhesuchende!
Die Ferienwohnung befindet sich im Herrenhaus auf Gut Winning in sehr idyllischer Lage an der kleinen Breite der Schlei. Der Hof liegt am nördlichen Schleiufer mit Blick über die Schlei auf das Naturschutzgebiet Reesholm.
Eine naturbelassene Bademöglichkeit befindet sich auf dem Grundstück ca. 400 m vom Haus entfernt. Der nächste Badestrand ist in Winningmay, 800 m fußläufig zu erreichen. Es gibt viele Möglichkeiten der Freizeitgestaltung, wie z.B. Segeln, Surfen und ausgiebige Fahrradtouren.
Um in der wunderbaren Schleilandschaft Fahrradausflüge zu unternehmen, können nach Absprache Fahrräder gestellt werden. Für eigene Fahrräder steht ein abschließbarer Raum zur Verfügung.
Ein Stellplatz für PKW ist vorhanden.
Sie genießen einen herrlichen Schleiblick und eine wunderbar natürliche Umgebung.
Sie finden einen großen lichtdurchfluteten Wohn- und Essbereich mit einem Balkon vor. Vom Balkon und aus dem Wohnzimmer hat man einen wunderschönen Blick über die Schlei und auf das Naturschutzgebiet Reesholm.
In der separaten, gut ausgestatteten Küche - u.a. mit Spülmaschine und Mikrowelle - finden Sie alles, um Ihren Urlaub auch kulinarisch einen Erfolg werden zu lassen.
Zwischen dem Essbereich und der Küche befindet sich eine Durchreiche. Aus der Küche genießen Sie einen wunderbaren Blick in den, hinter dem Haus gelegenen, Wald.
Es steht Ihnen ein großes Badezimmer mit einer Dusche und einem WC zur Verfügung. Außerdem gibt es ein separates WC mit Waschmaschine.
Für die Nachtruhe oder Mittagsstunde stehen ein gemütliches Schlafzimmer mit einem Doppelbett und ein kleines Schlafzimmer mit einem Einzelbett zur Verfügung.
Die Ferienwohnung (88 m²) befindet sich im ersten Stock des Herrenhauses.
Eine naturbelassene Bademöglichkeit befindet sich auf dem Grundstück ca. 400 m vom Haus entfernt. Der nächste Badestrand ist in Winningmay, 800 m fußläufig zu erreichen. Es gibt viele Möglichkeiten der Freizeitgestaltung, wie z.B. Segeln, Surfen und ausgiebige Fahrradtouren.
Um in der wunderbaren Schleilandschaft Fahrradausflüge zu unternehmen, können nach Absprache Fahrräder gestellt werden. Für eigene Fahrräder steht ein abschließbarer Raum zur Verfügung.
Ein Stellplatz für PKW ist vorhanden.
Sie genießen einen herrlichen Schleiblick und eine wunderbar natürliche Umgebung.
Sie finden einen großen lichtdurchfluteten Wohn- und Essbereich mit einem Balkon vor. Vom Balkon und aus dem Wohnzimmer hat man einen wunderschönen Blick über die Schlei und auf das Naturschutzgebiet Reesholm.
In der separaten, gut ausgestatteten Küche - u.a. mit Spülmaschine und Mikrowelle - finden Sie alles, um Ihren Urlaub auch kulinarisch einen Erfolg werden zu lassen.
Zwischen dem Essbereich und der Küche befindet sich eine Durchreiche. Aus der Küche genießen Sie einen wunderbaren Blick in den, hinter dem Haus gelegenen, Wald.
Es steht Ihnen ein großes Badezimmer mit einer Dusche und einem WC zur Verfügung. Außerdem gibt es ein separates WC mit Waschmaschine.
Für die Nachtruhe oder Mittagsstunde stehen ein gemütliches Schlafzimmer mit einem Doppelbett und ein kleines Schlafzimmer mit einem Einzelbett zur Verfügung.
Die Ferienwohnung (88 m²) befindet sich im ersten Stock des Herrenhauses.
Afstande fra ferieboligen og placering på kort
- Afstand til nærmeste strand 400 m
- Afstand til Schlei 400 m
- Afstand til Østersøen 25 km
Nærtliggende sommerhuse
Er I flere familier, der gerne vil bo tæt på hinanden kan I søge efter nærtliggende sommerhuseSe nabohuse
Vores gæstevurderinger Eksterne vurderinger
Priser og kalender
Kalender
Varighed
Personer
Pris
Periode
- Ankomst
- Afrejse
- Varighed
- 1 uge
Personer
Ingen personer er valgt
Bemærk
Ankomst er ikke valgt.
Der er ikke valgt personer.