Fakta om boligen
- 4 personer
- Ingen husdyr
- Rygning ikke tilladt
- 1 soveværelse
- 1 badeværelse
- Vand 200
Faciliteter
Afstande
-
Til badepladsen/vandmassen200 m
-
Til stranden200 m
-
Til togstationen12 km
-
Til turistinformationen300 m
Aktivitetsfaciliteter
-
Cykelvenlig
Børnefaciliteter
-
Familievenlig
Grundlæggende faciliteter
-
Størrelse35 m²
Indkvartering Faciliteter
-
Allergivenlig
-
Cykelrum aflåselig
-
Cykelvenlig
-
E-bil ladestation
-
Ikke-ryger hus
-
Internet i det offentlige område
-
Vandrer venlig
-
Ø-eksperternes anbefaling
Omgivende faciliteter
-
Cykelrum
-
Have til brug
-
Parkeringsplads
-
Siddeplads i haven
Servicefaciliteter
-
Allergikere (dyrefri)
-
Bad/toilet
-
Dobbeltseng
-
Dyr ikke tilladt
-
Husdyr tilladt eller efter anmodning
-
Højstol
-
Håndklæder
-
Hårtørrer
-
Ikke-rygere
-
Internet - WiFi
-
Kombineret stue/soveværelse
-
Køkken (åbent)
-
Køleskab
-
Mikroovn
-
Mulighed for fryser
-
Opvarmet
-
Ovn
-
Rejseseng/krybbe
-
Sengetøj
-
Sofa seng
-
Soveværelse
-
TV
-
Tørretumbler
-
Vaskemaskine
Beskrivelse
Beskrivelsen foreligger desværre ikke på Dansk. Se teksten på Tysk nedenfor, eller se den maskinoversatte tekst på Dansk.
Ferienwohnungen Haus Eintracht, Fewo 10
Das Haus „Eintracht befindet sich an der denkmalgeschützten Wilhelmstraße, der Promenadenstraße Sellins, etwa 150 m von der Seebrücke und dem Strand entfernt, inmitten von Cafés, Restaurants und Bistros. Es ist ein traditionelles Haus in der typischen Bäderarchitektur und wurde komplett renoviert. 12 komfortable, moderne Ferienwohnungen für bis zu 6 Personen befinden sich hier, von denen einige über Balkons zur Sonnenseite verfügen, andere über geschlossene Veranden. Die Küchen sind reichhaltig ausgestattet und verfügen alle über einen Backofen und teilweise über einen Geschirrspüler.
Hinter dem Haus stehen Parkplätze für unsere Gäste zur Verfügung. E-Autos können an zwei Wallboxen aufgeladen werden. Sie können kostenlos unsere Fahrräder benutzen und gelangen per W-LAN ins Internet.
Während in zwei Wohnungen (Whg. 01 und 03) auch Haustiere willkommen sind, sind alle anderen Wohnungen allergikergeeignet.
Hinweis zur Barrierefreiheit:
Die Wohnungen im Erdgeschoss (Whg. 01, 02 und 03) sind vom Parkplatz aus ohne Treppen zu erreichen. Die Wohnungen sind allerdings nicht rollstuhlgerecht.
Hinter dem Haus stehen Parkplätze für unsere Gäste zur Verfügung. E-Autos können an zwei Wallboxen aufgeladen werden. Sie können kostenlos unsere Fahrräder benutzen und gelangen per W-LAN ins Internet.
Während in zwei Wohnungen (Whg. 01 und 03) auch Haustiere willkommen sind, sind alle anderen Wohnungen allergikergeeignet.
Hinweis zur Barrierefreiheit:
Die Wohnungen im Erdgeschoss (Whg. 01, 02 und 03) sind vom Parkplatz aus ohne Treppen zu erreichen. Die Wohnungen sind allerdings nicht rollstuhlgerecht.
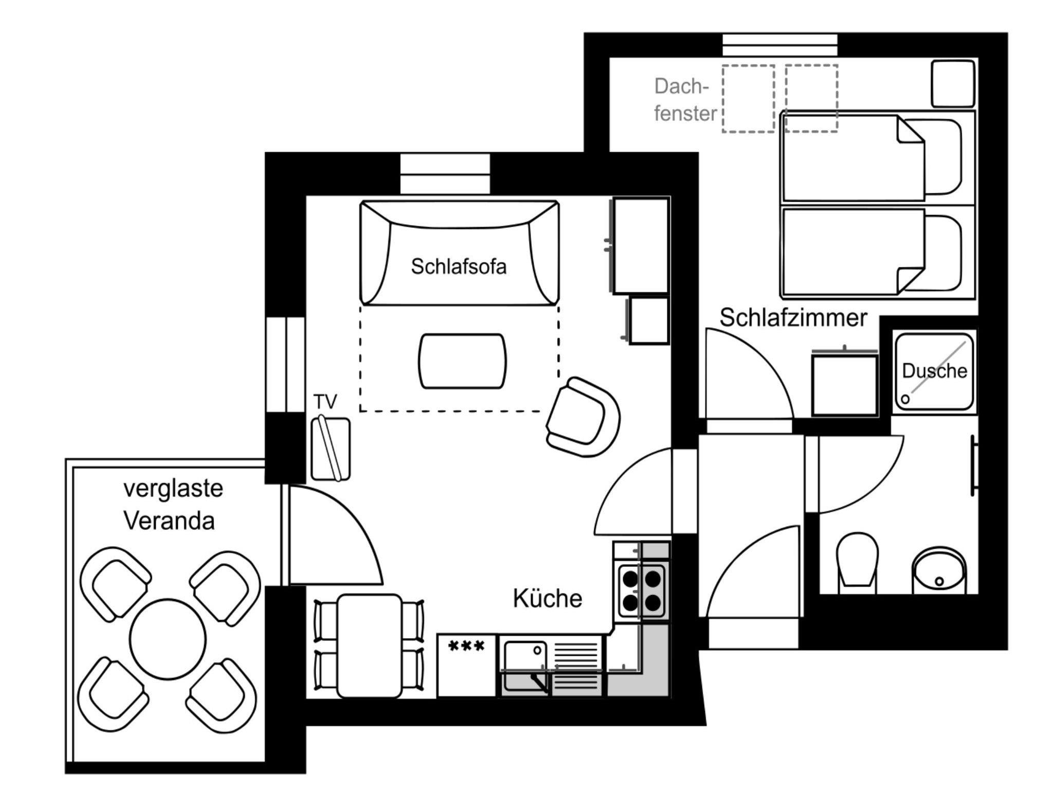
Ferienwohnung 10 im 2. Obergeschoss
• ca. 35 m²
• Wohnzimmer mit Schlafcouch, Essecke sowie Flachbild-TV
• offene Küche mit E-Herd, Backofen, Kühlschrank, Mikrowelle uvm.
• separates Schlafzimmer mit zwei zusammenstellbaren Einzelbetten (90x200 cm)
• Bad mit Dusche und WC
• verglaste Veranda
Bettwäsche und Handtücher (Erstausstattung) sind kostenlos ab einer Buchungsdauer von mindestens 7 Übernachtungen. Bei einer kürzeren Buchungsdauer können Sie die Wäsche selbst mitbringen oder für 12,00 EUR pro Person ausleihen.
• ca. 35 m²
• Wohnzimmer mit Schlafcouch, Essecke sowie Flachbild-TV
• offene Küche mit E-Herd, Backofen, Kühlschrank, Mikrowelle uvm.
• separates Schlafzimmer mit zwei zusammenstellbaren Einzelbetten (90x200 cm)
• Bad mit Dusche und WC
• verglaste Veranda
Bettwäsche und Handtücher (Erstausstattung) sind kostenlos ab einer Buchungsdauer von mindestens 7 Übernachtungen. Bei einer kürzeren Buchungsdauer können Sie die Wäsche selbst mitbringen oder für 12,00 EUR pro Person ausleihen.
Vor Ort
ortsübliche Kurtaxe
ortsübliche Kurtaxe
Afstande fra ferieboligen og placering på kort
- Til badepladsen/vandmassen 200 m
- Til stranden 200 m
- Til togstationen 12 km
- Til turistinformationen 300 m
Nærtliggende sommerhuse
Er I flere familier, der gerne vil bo tæt på hinanden kan I søge efter nærtliggende sommerhuseSe nabohuse
Vores gæstevurderinger Eksterne vurderinger
Priser og kalender
Kalender
Varighed
Pris
Periode
- Ankomst
- Afrejse
- Varighed
- 1 uge
Personer
Op til 4 personer
Bemærk
Ankomst er ikke valgt.