Störtebeker Straße - 25826 - St. Peter-Ording

5 personer
7 overnatninger
Fra DKK 8.030,-
5 personer

Fakta om boligen

  • 5 personer
  • Ingen husdyr
  • Rygning ikke tilladt
  • 2 soveværelser
  • 1 badeværelse

Faciliteter

Børnefaciliteter

  • Familievenlig

Grundlæggende faciliteter

  • Størrelse
    67 m²

Indkvartering Faciliteter

  • Ikke-ryger hus
  • Internet i det offentlige område

Omgivende faciliteter

  • Cykelrum
  • Have til brug
  • Parkeringsplads
  • Strandstol

Servicefaciliteter

  • Bad / WC
  • Bad/toilet
  • Balkon
  • Dyr ikke tilladt
  • Flere soveværelser
  • Hårtørrer
  • Ikke-rygere
  • Internet - WiFi
  • Kaffemaskine
  • Komfur
  • Mikroovn
  • Mulighed for fryser
  • Opvaskemaskine
  • Ovn
  • Separat køkken
  • Separat opholdsrum
  • Siddegruppe
  • Strandstol (personlig)
  • Terrasse
  • Toaster
  • TV
  • TV - fladskærm
  • Vandvarmer
  • WC-toilet

Beskrivelse

Beskrivelsen foreligger desværre ikke på Dansk. Se teksten på Tysk nedenfor, eller se den maskinoversatte tekst på Dansk.
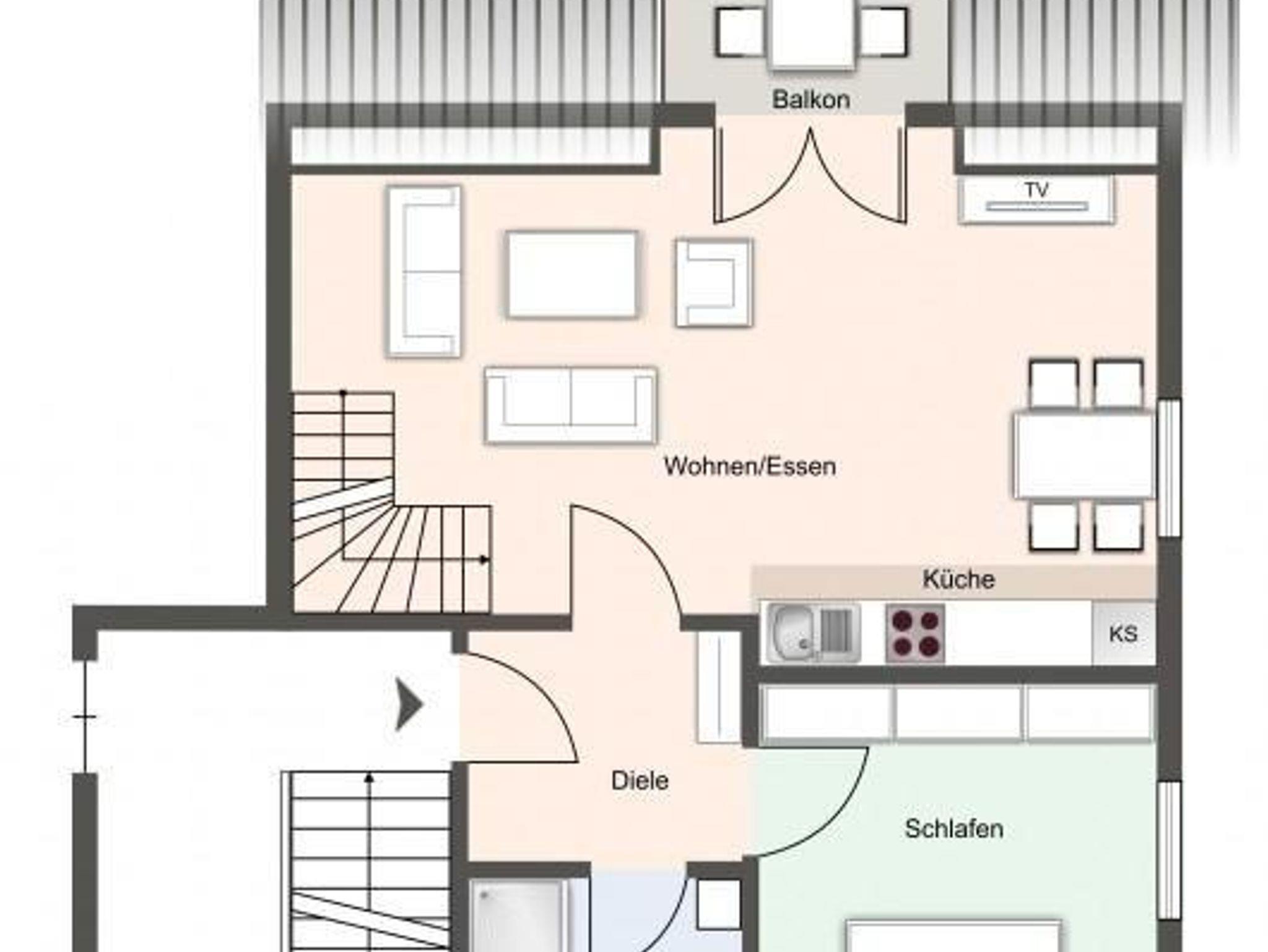
Appartement Waterkant SPO 4

Die gemütliche Ferienwohnung finden Sie im Ortsteil Ording in einzigartiger und sehr ruhiger Lage. Der große Seedeich ist nur 50 Meter entfernt, zwei Strandüberfahrten befinden sich in fußläufiger Entfernung, so dass Sie schnell den berühmten Sandstrand von St. Peter-Ording erreichen.

Im Obergeschoss über die breite Treppe erreichen Sie die 67 qm große Ferienwohnung Waterkant SPO 4. Über den großzügigen Wohn-Essbereich gelangen Sie zum ausgebauten Spitzboden, der drei Betten und einen fantastischen Blick über Ording bis zum Westerhever-Leuchtturm bietet. Das Doppelschlafzimmer erreichen Sie vom großzügigen Flur und es bietet herrliche Ruhe. Fliesen im Obergeschoss und Laminat im Spitzboden bieten einen sehr guten Wohnkomfort. Die Wohnung hat einen eigenen Gartenbereich mit Strandkorb und Düne vor dem Haus, sowie einen Autostellplatz.

Afstande fra ferieboligen og placering på kort

Der tages forbehold for evt. fejlplacering. Husadressen fremgår af lejebeviset.

Priser og kalender

Kalender

Ankomst
Næste
   Se om emnet er ledigt på den valgte dato
Ledig
Optaget
   Ankomst mulig
Varighed
Personer

Pris

Periode
Ankomst
Afrejse
Varighed
1 uge
Personer
Ingen personer er valgt

Bemærk

Ankomst er ikke valgt.
Der er ikke valgt personer.
Aftale- og lejebetingelser