Fakta om boligen
- 4 personer
- Ingen husdyr
- Rygning ikke tilladt
- 2 soveværelser
- 2 badeværelser
Faciliteter
Børnefaciliteter
-
Familievenlig
Grundlæggende faciliteter
-
Størrelse80 m²
Indkvartering Faciliteter
-
Ikke-ryger hus
-
Internet i det offentlige område
-
Sauna
Omgivende faciliteter
-
Cykelrum
-
Have til brug
-
Parkeringsplads
-
Strandstol
Servicefaciliteter
-
Bad / WC
-
Bad/toilet
-
Dyr ikke tilladt
-
Flere soveværelser
-
Hårtørrer
-
Ikke-rygere
-
Internet - WiFi
-
Kaffemaskine
-
Komfur
-
Køleskab
-
Mikroovn
-
Mulighed for fryser
-
Opvaskemaskine
-
Ovn
-
På jorden
-
Radio
-
Sengetøj
-
Separat køkken
-
Separat opholdsrum
-
Siddegruppe
-
Strandstol (personlig)
-
Stue
-
Terrasse
-
Toaster
-
TV
-
TV - fladskærm
-
Vandvarmer
-
Vaskemaskine
-
WC-toilet
Beskrivelse
Beskrivelsen foreligger desværre ikke på Dansk. Se teksten på Tysk nedenfor, eller se den maskinoversatte tekst på Dansk.
Ferienhaus Quartier Deich 4 Beachside
Die Ferienanlage „Quartier Deich 4“ direkt hinter dem Deich in St. Peter Ording, bietet 4 wunderschöne Hausscheiben für 2-6 Personen.
Wunderbar entspannt, am Rande des beliebten Ortsteiles Ording, liegt das Ferienhaus Quartier Deich 4.
Fußläufig ist der Seedeich in wenigen Schritten erreicht und Spazierwege durch den Dünengürtel führen zum Sandstrand Abschnitt Ording. Das Kurzentrum im Ortsteil Bad mit Geschäften, Restaurants und Cafés, der Dünentherme und Therapieeinrichtungen ist mit dem Fahrrad in 5-10 Minuten zu erreichen.
Nach diversen Urlaubsaktivitäten finden Sie in der Außensauna Ihre Entspannung, diese wird von den 4 Hausscheiben gemeinschaftlich genutzt.
Unmittelbar auf dem Grundstück hat jede Wohnung mindestens einen Parkplatz.
Mehr Meer geht nicht!
Das luxuriöse Ferienhaus mit wunderschöner Terrasse und traumhaften Blick über den Deich befindest sich direkt in Ording. Den riesigen Hauptstrand in Ording-Nord erreichen Sie in wenigen Minuten zu Fuß. Die Promenade von St. Peter-Ording mit seiner neuen Dünen-Therme und der Seebrücke erreichen Sie in ca. 15 Minuten oder 5 Minuten mit dem Auto.
Wunderbar entspannt, am Rande des beliebten Ortsteiles Ording, liegt das Ferienhaus Quartier Deich 4.
Fußläufig ist der Seedeich in wenigen Schritten erreicht und Spazierwege durch den Dünengürtel führen zum Sandstrand Abschnitt Ording. Das Kurzentrum im Ortsteil Bad mit Geschäften, Restaurants und Cafés, der Dünentherme und Therapieeinrichtungen ist mit dem Fahrrad in 5-10 Minuten zu erreichen.
Nach diversen Urlaubsaktivitäten finden Sie in der Außensauna Ihre Entspannung, diese wird von den 4 Hausscheiben gemeinschaftlich genutzt.
Unmittelbar auf dem Grundstück hat jede Wohnung mindestens einen Parkplatz.
Mehr Meer geht nicht!
Das luxuriöse Ferienhaus mit wunderschöner Terrasse und traumhaften Blick über den Deich befindest sich direkt in Ording. Den riesigen Hauptstrand in Ording-Nord erreichen Sie in wenigen Minuten zu Fuß. Die Promenade von St. Peter-Ording mit seiner neuen Dünen-Therme und der Seebrücke erreichen Sie in ca. 15 Minuten oder 5 Minuten mit dem Auto.
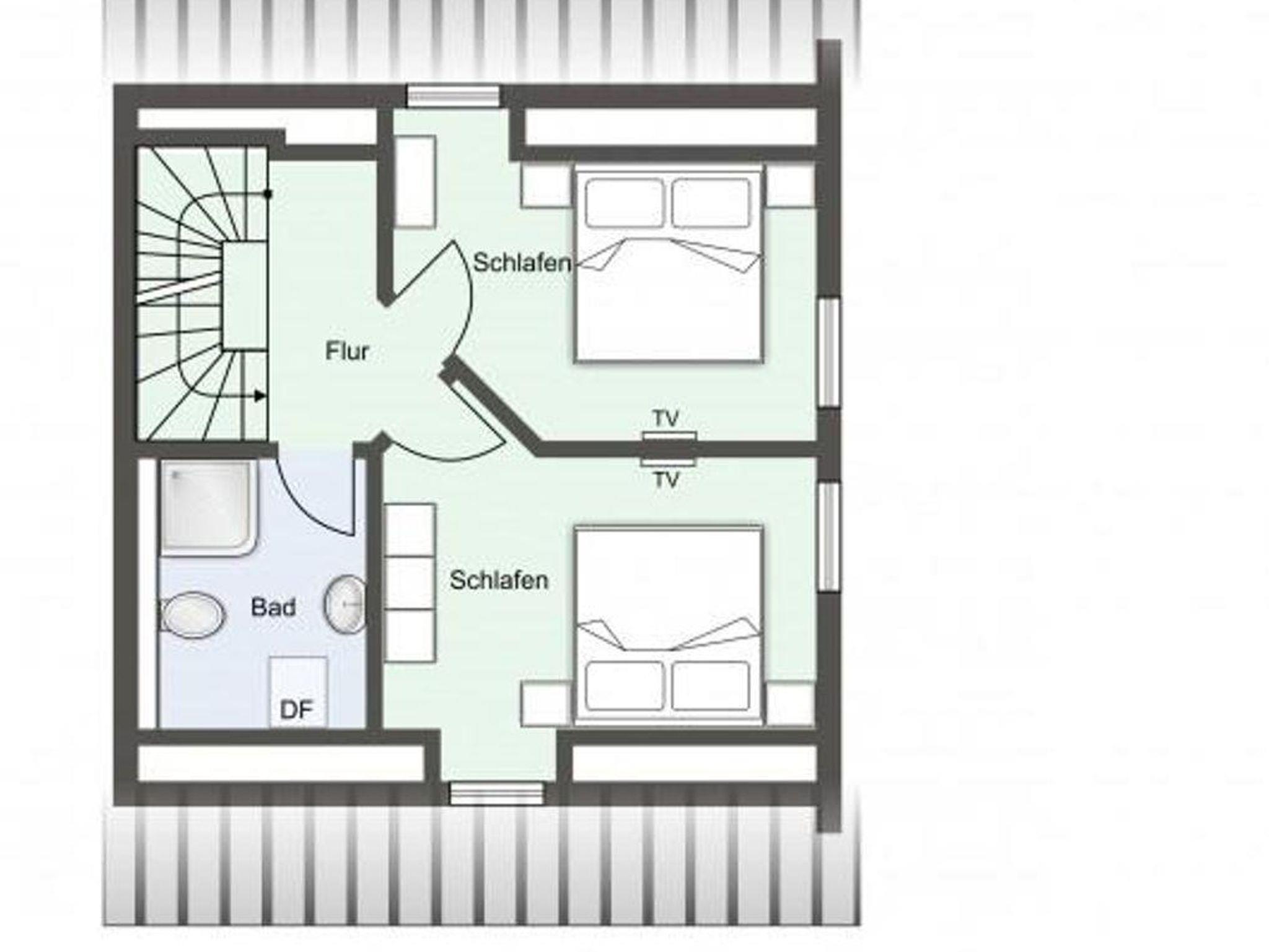
Die luxuriöse Endhausscheibe mit Garten, perfekter Süd-West Terrasse und traumhaften Blick über den Deich befindet sich direkt am Ordinger Hauptstrand. Das Endhaus verfügt über ca. 80 m² Wohnfläche und teilt sich wie folgt auf: Im Erdgeschoss befindet sich der Wohnraum mit einer offenen Wohnküche und einem gemütlichen Essbereich. Ein edler Kamin im Wohnraum bietet ruhevolle Entspannung. Die Küche ist mit hochwertigen Geräten und edlem Geschirr voll ausgestattet. Im Erdgeschoss ist ebenso ein Flur mit Garderobe, ein Abstellraum unter der Treppe und ein großzügiges Duschbad. Über eine Holztreppe gelangt man in das Obergeschoss mit zwei großzügigen Schlafzimmern und einem weiteren Duschbad. Mit viel Liebe zum Detail wurde großen Wert auf die Inneneinrichtung gelegt. Das ganze Haus verfügt über große Fenster und somit ist jeder Raum herrlich lichtdurchflutet.
Eine hochwertige Außensauna auf dem Grundstück bietet genügend Freiraum zur Erholung. Nutzbar von 4 Appartements aus dem Haus. Urlaub pur und das ab der ersten Sekunde!
Die Nähe zu den Hotspots, wie den km langen Kitestrand, das Beachmotel, Gosch etc., ist einzigartig in dieser Lage!
Eine hochwertige Außensauna auf dem Grundstück bietet genügend Freiraum zur Erholung. Nutzbar von 4 Appartements aus dem Haus. Urlaub pur und das ab der ersten Sekunde!
Die Nähe zu den Hotspots, wie den km langen Kitestrand, das Beachmotel, Gosch etc., ist einzigartig in dieser Lage!
Afstande fra ferieboligen og placering på kort
Nærtliggende sommerhuse
Er I flere familier, der gerne vil bo tæt på hinanden kan I søge efter nærtliggende sommerhuseSe nabohuse
Priser og kalender
Kalender
Varighed
Personer
Pris
Periode
- Ankomst
- Afrejse
- Varighed
- 1 uge
Personer
Ingen personer er valgt
Bemærk
Ankomst er ikke valgt.
Der er ikke valgt personer.