Fakta om boligen
- 6 personer
- Ingen husdyr
- 3 soveværelser
- 2 badeværelser
- Indkøb 2000
Faciliteter
Afstand
-
Banegård15 km
-
Busstop500 m
-
Centrum3 km
-
Diverse300 m
-
Doktor2 km
-
Lufthavn40 km
-
Restauranter500 m
-
Shopping2 km
Andre
-
Gæstetoilet
-
Insektnet
-
Parkering (mod betaling)
-
Tørrerum
-
Tørreskab
Byggestatus
-
Top placering
Generel Information
-
Boligareal130 m²
-
WiFi
Handicap - Mål
-
Frihøjde under håndvasken >= 70 cm
Køkkenudstyr
-
Elkedel
-
Fryser
-
Grill
-
Kaffemaskine
-
Kogeplade
-
Køleskab
-
Mikroovn
-
Opvaskemaskine
-
Ovn
-
Toaster
Offentlige rum
-
Lawn
Parkfaciliteter
-
Internetadgang
Rundt om huset
-
Carport
-
Cykler til rådighed
-
Have
-
Havemøbler
-
Internetadgang ISDN
-
Sun loungers
-
Terrasse
Sanitet / Vask
-
Badekar
-
Bruser
-
Håndvask
-
Tørretumbler
-
Varmt vand
-
Vaskemaskine
Type
-
Feriebolig
Udendørs aktivitet
-
Strand
Værelsesudstyr
-
Brandalarm
-
Garderobe
-
Garderobehylde
-
Pejs
-
Sikkerheds boks
-
Sofa
-
Sol paraply
-
Spejl
-
Spisebord
-
Støvsuger
-
TV
-
Viskestykker
Beskrivelse
Strandhus Möve
Bolig:
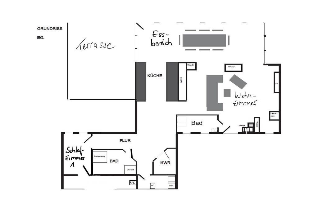
Tilbring dejlige solrige timer og aftener på den store bambusterrasse. Feriehuset har en rummelig opholdsstue med pejs og spiseplads med udsigt over haven. Ved siden af opholdsstuen ligger et lille badeværelse med bruser og toilet. Det åbne køkken er moderne og fuldt udstyret. Bag huset er der et soveværelse med en dobbeltseng (1,80m x 2,00m) og et separat toilet i et tilstødende rum. Det store badeværelse har badekar, bruser og toilet. Der er også vaskemaskine og tørretumbler på denne etage. Ovenpå finder du to soveværelser. Det mindre værelse med to enkeltsenge (1,40m x 1,90m) kan bruges som børneværelse. Det andet soveværelse har en dobbeltseng (1,80m x 2,00m).
Bolig:
Tilbring dejlige solrige timer og aftener på den store bambusterrasse. Feriehuset har en rummelig opholdsstue med pejs og spiseplads med udsigt over haven. Ved siden af opholdsstuen ligger et lille badeværelse med bruser og toilet. Det åbne køkken er moderne og fuldt udstyret. Bag huset er der et soveværelse med en dobbeltseng (1,80m x 2,00m) og et separat toilet i et tilstødende rum. Det store badeværelse har badekar, bruser og toilet. Der er også vaskemaskine og tørretumbler på denne etage. Ovenpå finder du to soveværelser. Det mindre værelse med to enkeltsenge (1,40m x 1,90m) kan bruges som børneværelse. Det andet soveværelse har en dobbeltseng (1,80m x 2,00m).
Afstande fra ferieboligen og placering på kort
- Banegård 15 km
- Busstop 500 m
- Centrum 3 km
- Diverse 300 m
- Doktor 2 km
- Lufthavn 40 km
- Restauranter 500 m
- Shopping 2 km
Nærtliggende sommerhuse
Er I flere familier, der gerne vil bo tæt på hinanden kan I søge efter nærtliggende sommerhuseSe nabohuse
Priser og kalender
Kalender
Ankomst
-
december 2025
ma ti on to fr lø sø 49 1 2 3 4 5 6 7 50 8 9 10 11 12 13 14 51 15 16 17 18 19 20 21 52 22 23 24 25 26 27 28 1 29 30 31 2 -
januar 2026
ma ti on to fr lø sø 1 1 2 3 4 2 5 6 7 8 9 10 11 3 12 13 14 15 16 17 18 4 19 20 21 22 23 24 25 5 26 27 28 29 30 31 6
Se om emnet er ledigt på den valgte dato
Ledig
Optaget
Ankomst mulig
Varighed
Pris
Periode
- Ankomst
- Afrejse
- Varighed
Personer
Op til 6 personer
Bemærk
Kan ikke bookes på nuværende tidspunkt.